0
Passer au contenu
accueil
projets
Missions
À propos
Contact
Ouvrir le menu
Fermer le menu
accueil
projets
Missions
À propos
Contact
Ouvrir le menu
Fermer le menu
accueil
projets
Missions
À propos
Contact
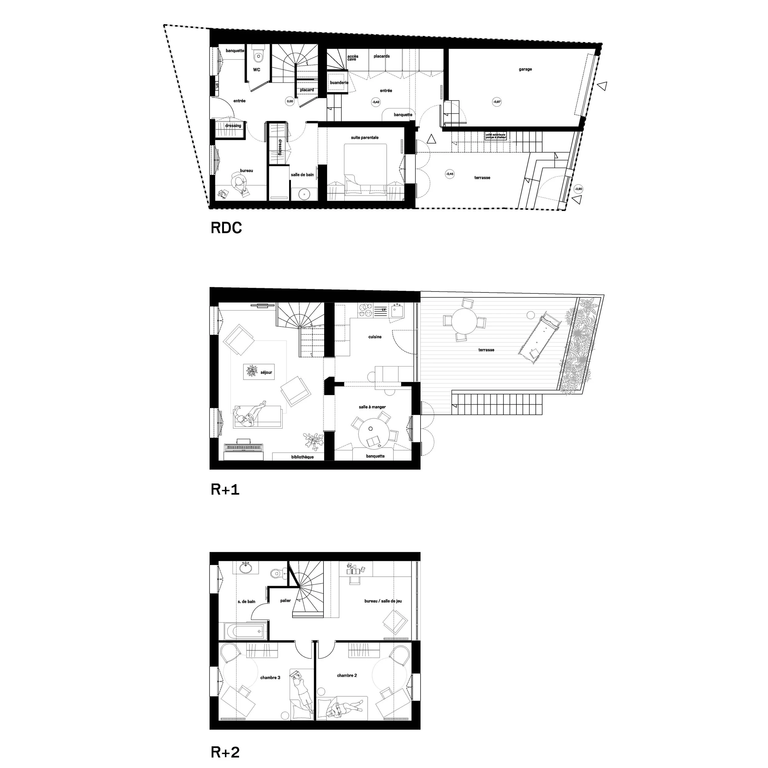
Fontenay-sous-Bois - Val-de-Marne
Surélévation et restructuration d’une maison individuelle.
Suivant
Suivant
L'Isle-Adam - 95