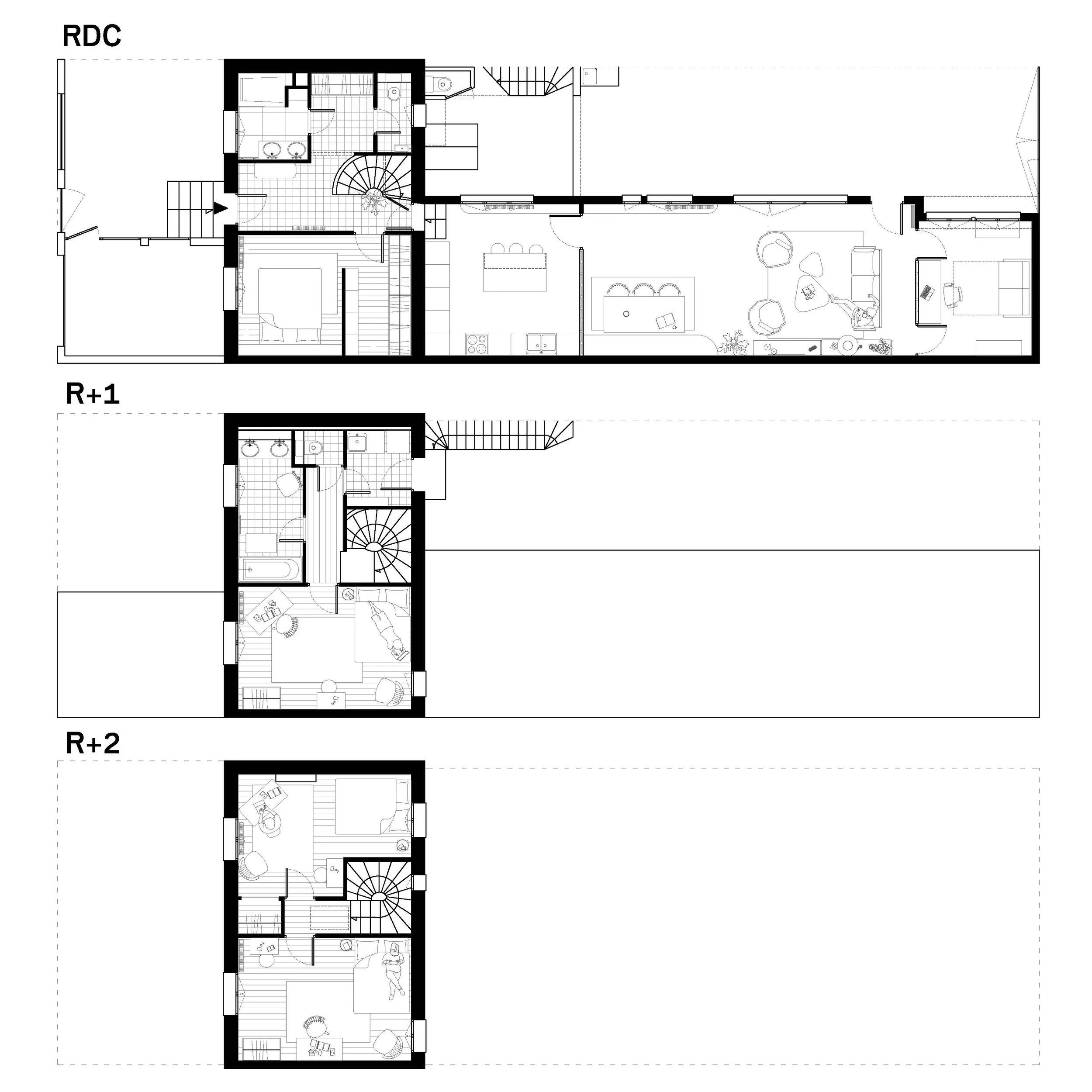
Les Lilas

Restructuration et rénovation d’un appartement familial.

Précédent
Précédent

L'Isle-Adam 2 - 95

Suivant
Suivant

Paris 19e - 75